气动活塞式调节阀
一、气动活塞式调节阀 产品概述
公司生产的的ZJHSP/M气系列气动活塞式调节阀是由ZSA(B)型弹簧活塞式执行机构和精小型单座(套筒)阀体组成,结构更轻小,推力更大,但灵敏度稍差。气动活塞式调节阀配用电-气阀门定位或气动阀门定位器,可实现对工艺管路流体介质的自动调节控制。
气动活塞式调节阀广泛应用于精确控气体、液体、蒸汽等介质的工艺参数如压力、流量、温度、液位等参数保持在给定值气。
气动活塞式调节阀阀芯采用平衡式结构,许用压差大,抗振性好,噪声低、稳定性好,装拆简便,选择不同的弹簧范围可得需要的许用压差。
气动活塞式调节阀应用于要求噪音低,工作压差大或安装位置受限制及要求响应速度快的工业销售过程自控系统
一、气动活塞式调节阀 产品概述
|
公司生产的的ZJHSP/M气系列气动活塞式调节阀是由ZSA(B)型弹簧活塞式执行机构和精小型单座(套筒)阀体组成,结构更轻小,推力更大,但灵敏度稍差。气动活塞式调节阀配用电-气阀门定位或气动阀门定位器,可实现对工艺管路流体介质的自动调节控制。 |
|
|
ZJHSP/M气动活塞式调节阀
|
二、气动活塞式调节阀 主要技术参数
1、阀体
| 阀体形式 | 直通铸造球型阀 |
|---|---|
| 公称通径 | DN20~200mm |
| 公称压力 | PN1.6、2.5、4.0、6.4 |
| 法兰标准 | GB/T9113、 JB/T79、HG20594及其他标准 |
| 连接形式 | 法兰(FF RF RTJ)、焊接(SW BW)、螺纹(适用于1″以内) |
| 阀盖形式 | 标准型-17~+250℃、高温型+250~+450℃、低温型-60~-196℃、波纹管密封型-40~+350℃ |
| 压盖型式 | 螺栓压紧式 |
| 密封填料 | V型聚四氟乙烯填料、含浸聚四氟乙烯石棉填料、石棉纺织填料、石墨填料 |
| 阀体材料 | 铸钢(WCB)、不锈钢(CF8、CF8M、CF3、CF3M)、铬钼钢、铸钢衬四氟(WCB+F46) |
2、阀内件
| 阀芯形式 | 单座柱塞型阀芯 |
|---|---|
| 流量特性 | 线性、等百分比 |
| 阀芯材料 | 不锈钢 (304、304L、316、316L) |
3、执行机构及附件、作用形式
| 执行器型式 | ZSA/B、ZSN型气动活塞式执行机构 | ||||
|---|---|---|---|---|---|
| 执行器型号 | ZSA/B-2P | ZSA/B-3P | ZSA/B-4P | ZSA/B-5P | ZSA/B-6P |
| 气缸直径(mm) | 125 | 160 | 200 | 250 | 320 |
| 行程(mm) | 10、16 | 16、25 | 25、40 | 50、60 | 60、100 |
| 弹簧范围(KPa) | 气关式:40~200,气关式80~240,100~200,200~350,350~500 | ||||
| 供气压力(MPa) |
ZSA,ZSN为0.4-0.6;ZS-P:气开比弹簧范围上限大0.05 气关按上限+下限+0.05 |
||||
| 可配附件 | 定位器、空气过滤减压器、保位阀、手轮机构等 | ||||
| 作用形式 | 气关式(B)—失气时阀位开(FO);气开式(K)—失气时阀位关(FC) | ||||
三、气动活塞式调节阀 主要性能指标
| 项目 | 指标值 | 项目 | 带定位器 | ||
|---|---|---|---|---|---|
| 基本误差% | 1.0 | 始终点偏差值% | 气开 | 始点 | 1.0 |
| 终点 | |||||
| 回差% | 1.0 | 气关 | 始点 | 1.0 | |
| 死区% | 0.4 | 终点 | |||
| 额定行程偏差% | 2.5 | 允许泄漏量L/h | 阀额定容量 | ||
四、气动活塞式调节阀 额定流量系数Kv、允许压差
| 公称通径 DN(mm) | 25 | 32 | 40 | 50 | 65 | 80 | 100 | 125 | 150 | 200 | 250 | 300 | |
|---|---|---|---|---|---|---|---|---|---|---|---|---|---|
| 阀座直径 dN(mm) | 25 | 32 | 40 | 50 | 65 | 80 | 100 | 125 | 150 | 200 | 250 | 300 | |
| 额定流量系数KV | 单座 | 11 | 17 | 27.5 | 44 | 69 | 110 | 176 | 275 | 440 | 630 | 1000 | 1600 |
| 套筒 | 10 | 16 | 25 | 40 | 63 | 100 | 155 | 250 | 370 | 580 | 900 | 1300 | |
| 允许压差(MPa) | 单座 | 3.2 | 3.0 | 2.0 | 1.8 | 1.5 | 1.4 | 1.0 | 0,7 | 0.6 | 0.5 | 0.3 | 0.1 |
| 套筒 | 6.4 | 5.2 | 5.2 | 4.6 | 4.6 | 3.7 | 3.7 | 3.5 | 3.1 | 3.1 | 2.6 | 2.2 | |
| 额定行程(mm) | 16 | 25 | 40 | 60 | 100 | ||||||||
| 执行器型号 | ZSA/B-2P | ZSA/B-3P | ZSA/B-4P | ZSA/B-5P | ZSA/B-6P | ||||||||
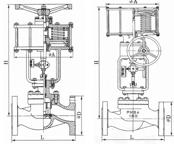
五、气动活塞式调节阀 主要外形图
|
|
ZJHSP/M气动活塞式调节阀 外形尺寸图
|
六、气动活塞式调节阀 主要连接尺寸
| 公称通径DN(mm) | 25 | 32 | 40 | 50 | 65 | 80 | 100 | 125 | 150 | 200 | 250 | 300 | |
|---|---|---|---|---|---|---|---|---|---|---|---|---|---|
| L | PN16/25 | 184 | 200 | 222 | 254 | 276 | 298 | 352 | 410 | 451 | 550 | 640 | 880 |
| PN40 | 197 | 200 | 235 | 267 | 292 | 317 | 368 | 425 | 473 | 640 | 760 | 910 | |
| PN64 | 200 | 210 | 251 | 286 | 311 | 337 | 394 | 440 | 508 | 670 | 810 | 950 | |
| H | PN16/25 | 57.5 | 75 | 75 | 85.5 | 92.5 | 100 | 110 | 142.5 | 158 | 170 | 195 | 230 |
| PN40 | 57.5 | 75 | 75 | 82.5 | 92.5 | 100 | 117.5 | 150 | 167.5 | 187.5 | 205 | 245 | |
| PN64 | 40 | 85 | 85 | 90 | 102.5 | 107.5 | 125 | 172.5 | 195 | 207.5 | 230 | 260 | |
| H1 | 396 | 428 | 428 | 436 | 415 | 464 | 507 | 690 | 840 | 632 | 725 | 882 | |
| H2 | 290 | 290 | 325 | 325 | 440 | 440 | 440 | 590 | 590 | 590 | 640 | 640 | |
| H3 | 180 | 180 | 180 | 180 | 236 | 236 | 236 | 310 | 310 | 310 | 380 | 380 | |
| L1 | 280 | 280 | 280 | 280 | 350 | 350 | 350 | 475 | 475 | 475 | 560 | 560 | |
| A | 148 | 148 | 185 | 185 | 232 | 232 | 232 | 283 | 283 | 283 | 283 | 283 | |
| C | 220 | 220 | 220 | 220 | 270 | 270 | 270 | 320 | 320 | 320 | 400 | 400 | |
注:表中尺寸为不带标准附件数据。另由于产品改进技术创新参数可能有一定变化,请咨询公司技术部门索取最新数据。
